Ver Tour Virtual
- $6,400,000 MXN En Venta
- 2 recámaras
- 2 baños, 1 medio baño
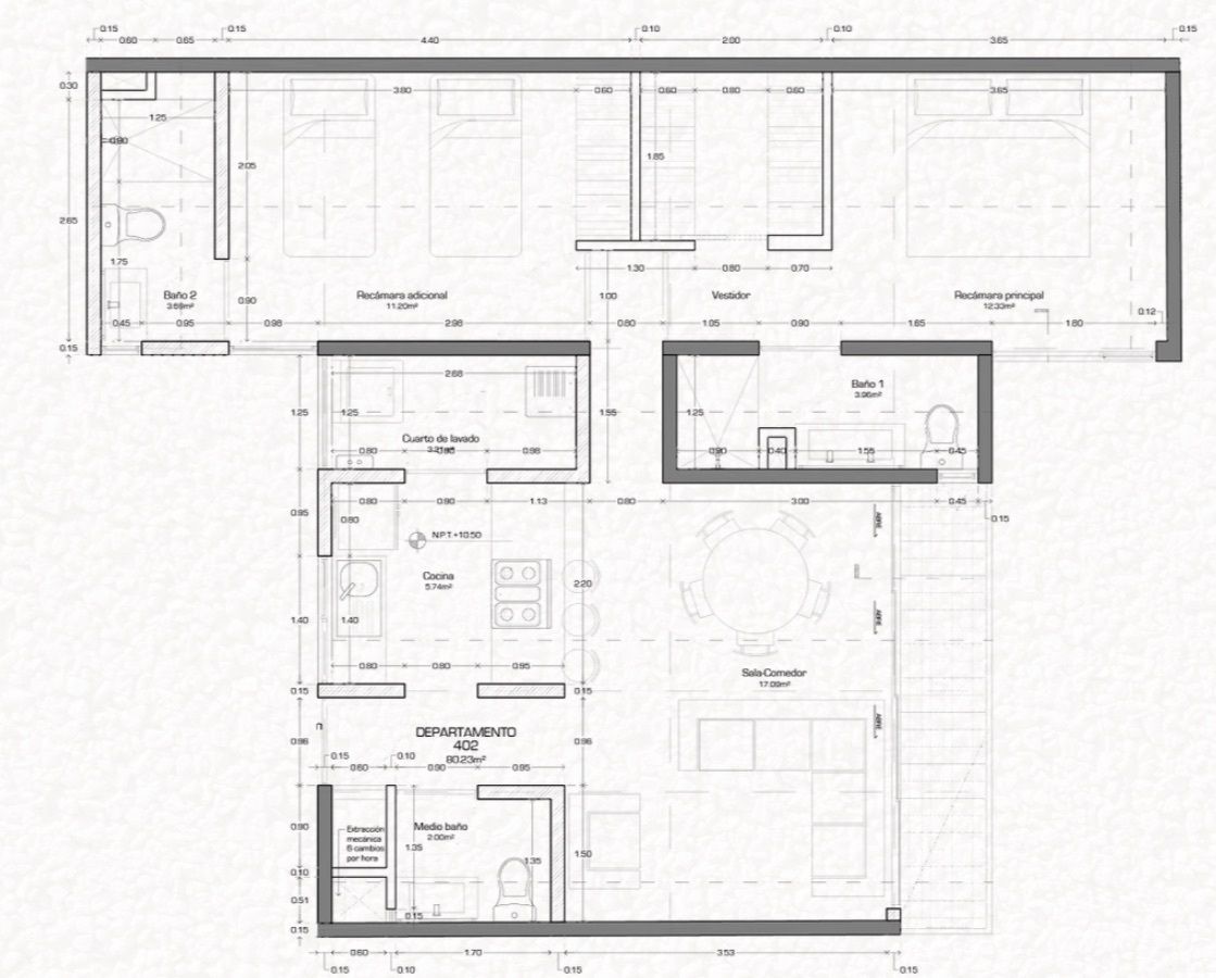
- 126 m² de construcción
- 1 Estacionamientos
Detalles
- Tipo: Departamento
- ID: EB-LX8595
- Antigüedad: 2023
- Recámaras: 2 recámaras
- Baños: 2
- Medios baños: 1
- Piso: 4
- Mantenimiento: 2500
Descripción
- DEPTO DE 79M2 DE 1 HABITACIÓN.
- DEPTO DE 108M2 DE 2 HABITACIONES.
- 3 DEPTOS DE 105M2 CON 2HABITACIONES
- 3 DEPTOS DE 86M2 CON 2HABITACIONES.
- ROOF GRADEN PRIVADO.
- ESTACIONAMIENTO.
- SEGURIDAD LAS 24 HRS.
Excelente ubicación y acabados.Todos cuentan con estancia, cocina integral, baños, closets de madera, baños completos, área de lavado, elevador.
CARACTERÍSTICAS:
•8 DEPARTAMENTOS
• TERRAZA Y BALCÓN INCLUIDOS
• VENTILACIÓN CRUZADA
• ELEVADOR
• SEGURIDAD 24/7
• LUZ NATURAL
• CISTERNA
• UBICACIÓN PRIVILEGIADA
•ESTACIONAMIENTO
• ROOF GARDEN PRIVADO
Amenidades
- Elevador
- Seguridad 24 horas
- Balcón
- Cisterna
- Estacionamiento techado
- Facilidad para estacionarse
- Garaje
- Roof garden
- Accesibilidad para adultos mayores
- Accesibilidad para personas con discapacidad
- Cocina integral
- Mascotas permitidas
- Permitido fumar
- Terraza
- Bodega
- Circuito cerrado
- Cocina equipada
- Dos plantas
- Penthouse
Ubicación









