
- US$ 7.20 por m² En Renta
- 6,459 m² de construcción
- 12,894 m² de terreno
- 55 Estacionamientos
Detalles
- Tipo: Bodega industrial
- ID: EB-UI7813
- Antigüedad: 2025
- Pisos: 1
Descripción
Precio de renta de $7.20 USD. por m2 de renta.
Mas los impuestos correspondientes mas la cuota de mtto.
FICHA TÉCNICA :
Características del Inmueble
Nave Industrial –
NFORMACIÓN DEL INMUEBLE: Nave industrial tipo SPEC IV - VRAIP IV.
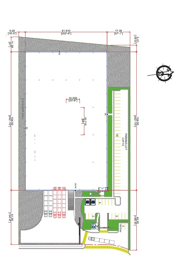
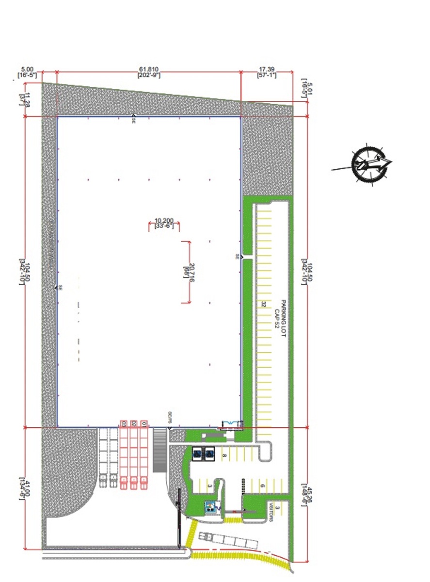
SUPERFICIE DE TERRENO: 12,894 m² (138,790 ft²).
SUPERFICIE DE CONSTRUCCIÓN: 6,459 m² (69,528 ft²).
ESTACIONAMIENTO: 55 cajones.
ANDENES: 3 de carga + 2 de descarga.
RAMPAS: 1 rampa de concreto.
MODULACIÓN: 10.20 m x 20.71 m (33’-6” x 68’).
ALTURA LIBRE: 9.75 m (32’).
TRAGALUCES: Aproximadamente 4%.
ESTRUCTURA: Marco rígido de acero.
MUROS: Concreto prefabricado.
CUBIERTA: Lámina engargolada tipo standing seam.
PISO: Espesor de 15 cm (6 pulgadas), adaptable según necesidades del cliente.
CASETA DE VIGILANCIA / SUBESTACIÓN: 9.90 m² (106.56 ft²).
Amenidades
- Andén
- Seguridad 24 horas
- Facilidad para estacionarse
- Muelle de carga
- Patio
Ubicación