Ver Tour Virtual
- $450,000 MXN En Renta
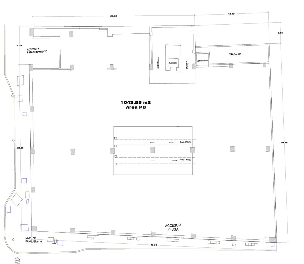
- 1,043.55 m² de construcción
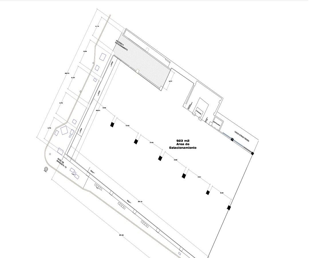
- 923 m² de terreno
- 30 Estacionamientos
Detalles
- Tipo: Edificio
- ID: EB-UY4229
- Pisos: 4
Descripción
Ubicar tu empresa en el corazón de la ciudad no es una casualidad, es una estrategia.
Este edificio comercial en renta se encuentra en esquina, sobre 1ª Norte Poniente, a una cuadra del Palacio de Gobierno, Ayuntamiento, Palacio Federal y Parque Central, es decir, en el primer cuadro de Tuxtla Gutiérrez, donde convergen gobierno, comercio, servicios y alto flujo peatonal y vehicular
La ubicación ofrece máxima visibilidad, accesos inmediatos desde avenidas principales y una presencia institucional y comercial difícil de igualar, ideal para dependencias, corporativos, tiendas ancla, clínicas, financieras, universidades, coworking o centros de atención masiva.
El edificio cuenta con 4 niveles, azotea y sótano, con superficies amplias y funcionales:
Planta baja: 1,043.55 m²
Niveles 1, 2 y 3: 921.09 m² cada uno
Sótano: 923 m²
Azotea: 921.09 m²
Su diseño permite rentar por nivel o el edificio completo, adaptándose a proyectos de gran escala o esquemas corporativos flexibles.
A nivel infraestructura, el inmueble está preparado para operación intensiva:
Transformador de 250 KVA
Cisterna de 20,000 litros
Elevador para 8 pasajeros
Montacargas con capacidad de 2 toneladas, ideal para logística, archivo, mercancía o equipamiento pesado
Estacionamiento para 30 vehículos.
Este no es solo un edificio:
es una plataforma estratégica para posicionar tu marca, operar con eficiencia y estar donde las decisiones, el flujo y la ciudad se mueven.
📌 Renta disponible por nivel o edificio completo.
📄 Contrato a largo plazo (3 años), ideal para proyectos sólidos y de proyección.
PRECIOS DE RENTA POR PISOS:
PLANTA BAJA: $200,000.00 MÁS I.V.A.
SEGUNDO NIVEL $150,000.00 MÁS I.V.A.
TERCER Y CUARTO NIVEL: $100,000.00 MÁS I.V.A.
PRECIO TODO EL EDIFICIO $450,000.00 MÁS I.V.A.
Condiciones de arrendamiento:
* Plazo mínimo 3 años.
* 2 meses de depósito en garantía.
* Fiador con bien raíz o fianza o póliza jurídica de arrendamiento.
*** El precio está sujeto a cambio sin previo aviso.
*** Consulte nuestro aviso de privacidad en www.stayhomeinmobiliaria.com.mx
*** Sugerencias, comentarios y/o quejas al correo stayhomeinmobiliaria@gmail.com
Amenidades
- Cisterna
- Accesibilidad para adultos mayores
- Accesibilidad para personas con discapacidad
- Elevador
Ubicación









