Ver Tour Virtual
- $5,480,000 MXN En Venta
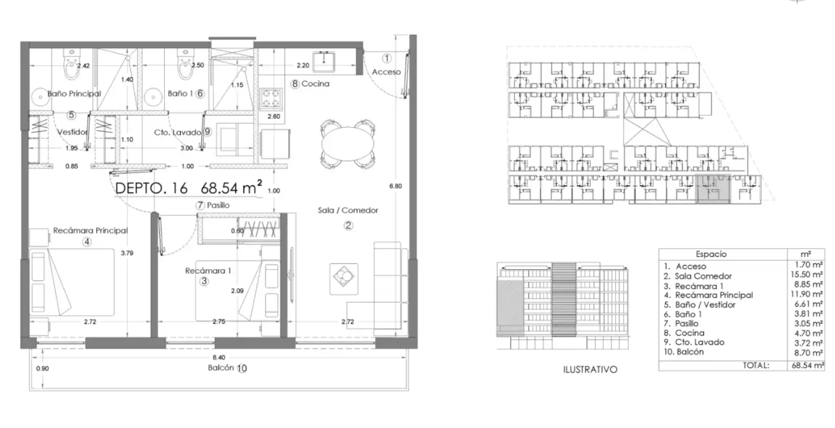
- 2 recámaras
- 2 baños, 0 medios baños
- 68.54 m² de construcción
- 2 Estacionamientos
Detalles
- Tipo: Departamento
- ID: EB-UU7543
- Antigüedad: En construcción
- Recámaras: 2 recámaras
- Baños: 2
- Medios baños: 0
- Piso: 6
Descripción
Apartado $50,000
Enganche al contrato $498,000
23 mensualidades $23,826
Enganche Total $1,096,000
Cifra a pagar en escrituración $4,384,000
Desarrollo con área comercial en la planta baja
2 recamaras
estancia
comedor
2 baños
2 estacionamientos
balcon 8.7m2
Amenidades
Area de juegos
Firepit
Terraza
Coworking
Comedor
Area comercial
Carril de nado
Salón jovenes
Cada espacio está diseñado con un enfoque meticuloso en detalles y acabados. Utilizamos materiales de alta gama para asegurar que cada superficie, desde los pisos hasta los techos, refleje lujo y sofisticación. Nuestros acabados no solo son visualmente impresionantes, sino también duraderos y funcionales.
Amenidades
- Cisterna
- Estacionamiento techado
- Facilidad para estacionarse
- Accesibilidad para adultos mayores
- Accesibilidad para personas con discapacidad
- Cocina integral
- Elevador
- Hidroneumático
- Mascotas permitidas
- Seguridad 24 horas
- Una sola planta
- Fraccionamiento privado
- Alberca
- Área de juegos infantiles
- Fogatero
- Gimnasio
- Balcón
Ubicación









