Ver Tour Virtual
- $8,195,000 MXN En Venta
- 5 recámaras
- 4 baños, 1 medio baño
- 333.6 m² de construcción
- 398.79 m² de terreno
- 2 Estacionamientos
Detalles
- Tipo: Casa
- ID: EB-SP8274
- Antigüedad: A estrenar
- Recámaras: 5 recámaras
- Baños: 4
- Medios baños: 1
- Fondo del terreno: 11 m
- Frente del terreno: 38 m
- Mantenimiento: No aplica
Descripción
A escasos 1.6km del periférico norte de ubica Horizontes Dzityá, su cercania con todos los servicios y su conectividad la colocan como una de las zonas mas deseadas para vivir actualmente.
La oferta residencial de Dzityá cada vez cobra mas valor, sus casas con gran amplitud, su equipamiento y diseños modernos las colocan entre las favoritas.
Casa Chula | Inteligente y de lujo
Resalta el paisajismo de su jardín interior como un espacio de meditación y contemplación +una alberca con cascada para relajación y entretenimiento.
CASA CHULA
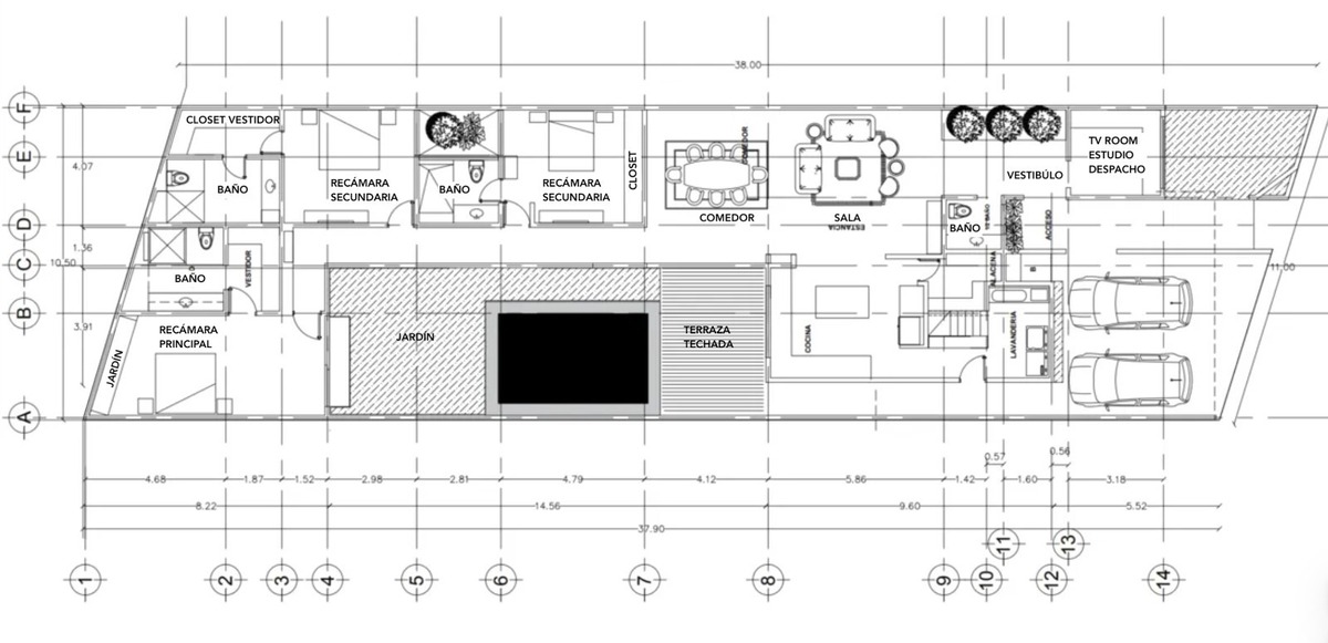
Cochera techada para 2 autos
Vestíbulo
Jardín interior
Estudio / Tv Room
Baño de visitas
Sala Comedor con techos altos 4.20m y vista al jardín y alberca
Cocina de diseñador con isla y vista al jardín y alberca
Alacena / Cuarto de lavado
Pasillo de distribución
Terraza techada
Alberca con sistema de filtrado
Bodega
Diseño de jardín
Recámara 1 con closet y baño propio
Recámara 2 con walk in closet y baño propio
Recámara Principal con jardín interior, walk in closet y baño propio
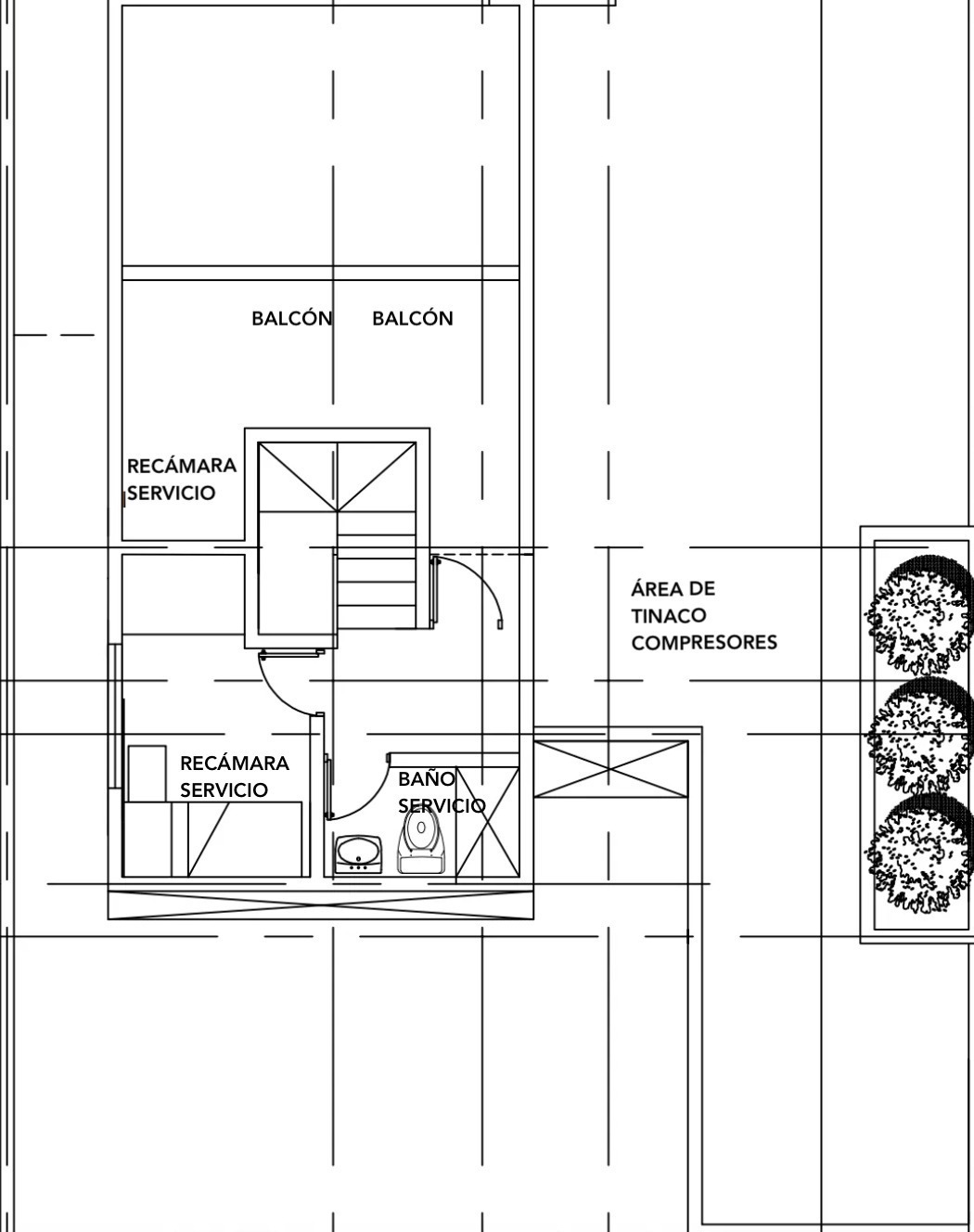
Planta Alta (servicios)
2 Cuartos de servicio compartiendo baño
Patio de tendido oculto
Equipamiento / Acabados
Cocina de Modul Studio equipada con parrilla, campana, hornos, lava vajillas, con costo de $500,000 MN
Incluye clima minisplit en cocina
Fachada distintiva
Alberca con cascada y sistema de filtrado
Césped y paisajismo
Vidrios templados en baños con puerta
Cocina vestida con gran categoria
Tanque estacionario y calentador
Pisos cerámicos gran formato 1.5x.75
Lavamanos Kholer
Grifería Helvex
Plafones con luz indirecta
Carpintería en closets de madera
Inodoros One Piece interceramic
Terraza techada con pergola de ptr
Cubierta de cocina: Granito Kosmus
Pisos de marmol crema maya
Mosquiteros
Única Disponible
Entrega: Inmediata
Precio: $8,195,000 MN
Precio con doble lote 800m2 de terreno $9,950,000 MN
Forma de pago:
Apartado $20,000 MN vigentes 7 días
Enganche: 20%
Saldo a la firma
Acepta créditos bancarios / recursos propios.
NO INCLUYE:
PANELES SOLARES
CLIMAS MINISPLIT EN RECÁMARAS, ESTUDIO, SALA COMEDOR
VENTILADORES
LAMPARAS DECORATIVAS
**Precios y disponibilidad sujetos a cambio sin previo aviso**
***Las imágenes mostradas son meramente para fines ilustrativos***
****En operaciones con crédito el precio total se determinará en función de los montos variables de conceptos de crédito y gastos notariales, los cuales deben ser consultados con los promotores, de conformidad con lo establecido en laNOM-247-SE-2022.
Opciones de financiamiento
- Créditos bancariosMortgage
Amenidades
- Accesibilidad para adultos mayores
- Cuarto de servicio
- Hidroneumático
- Oficina
- Una sola planta
- Mascotas permitidas
- Permitido fumar
- Estacionamiento techado
- Facilidad para estacionarse
- Jardín
- Cocina equipada
- Riego por aspersión
- Accesibilidad para personas con discapacidad
- Aire acondicionado
- Cocina integral
- Dos plantas
- Estudio
- Recámara en planta baja
Ubicación









