BEST Inmobiliaria

  • 5522680297
  • best-inmobiliaria.easybroker.com

Terreno 726M2 en Venta, Corasol

Playa del Carmen, Playa del Carmen

$16,720,988 For Sale

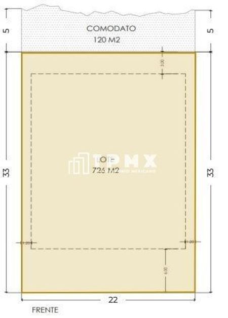
  • 726 m² Lot Size
  • 33 m Lot Length
  • 22 m Lot Width
  • EB-OL3791 ID
Description

Terreno en venta dentro Corasol, Riviera Maya.
Corasol cuenta con una ubicación privilegiada cerca de todos los atractivos turísticos del Caribe Mexicano.

726 M2 de terreno
22 metros de frente
33 metros de costado
COS 60%
CMS 68%
CUS 200%


Al sur del proyecto hay acceso vigilado y controlado que conecta directamente con la famosa 5ta. Avenida de Playa del Carmen, a la cual se puede ir con facilidad.

Cercanía con muchos puntos de interés:
- Aeropuerto Internacional de Cancún a 40 min.
- Playa del Carmen a 8 min.
- Playas de Tulum a 40 min.
- Puerto Cancún a 50 min.
- Cozumel a 40 min.
- Tulum a 60 min.

Permitiendo a los residentes acceder a atención de primera calidad como salud, cultura, paisajes, diversidad gastronómica, etc.

Amenidades
- Vista al Campo de Golf "Gran Coyote"
- Doble acceso de seguridad y viabilidad para mayor libertad de acceso.

En La Escondida se tendrá una membresía con acceso a todas las experiencias dentro de Corasol.

- En Costa Beach Club, se tendrá acceso a una playa expectacular de más de 130m lineales de arena blanca, selva tropical y vistas al mar.
- Exclusivos restaurantes gourmet.
- Spa de clase mundial.
- Múltiples albercas y espacios
- Acceso al Campo de Golf "Gran Coyote"
- Acceso de "The Park" un lugar rodeado de escenarios naturales donde se pueden realizar actividades tanto deportivas como en familia.
- Huertos de paisaje, comestibles y aromáticos.
- Dos espacios para el disfrute de la comunidad con cuevas cenotes con ambientación de paisaje salvaje

Amenities
  • Beach Access
  • Street parking
  • Waterfront
  • Water View
  • Pool
  • Tennis court
  • Gym
  • Multipurpose room

BEST Inmobiliaria

  • 5522680297
  • best-inmobiliaria.easybroker.com

BEST Inmobiliaria

  • 5522680297
  • best-inmobiliaria.easybroker.com