BEST Inmobiliaria

  • 5522680297
  • best-inmobiliaria.easybroker.com

SE RENTA BODEGA EN INDUSTRIAL VALLEJO

Industrial Vallejo, Azcapotzalco

$2,362,800 For Rent

  • 12,028 m² total space
  • 10,000 m² Lot Size
  • EB-TN2090 ID
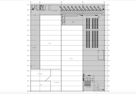
Description

Se encuentra en INDUSTRIAL VALLEJO, ubicado en la alcaldía Azcapotzalco.

CARACTERÍSTICAS
- 8m libres de altura
- 6 andenes de carga y descarga
- 22 bahías de carga
- 2 accesos
- Montacargas

Precio por m²: $220 más IVA.

CONTRUCCIÓN
12,028 m²
TOTAL m2 TERRENO:
10,000 m²
PB
8,584 m²
MEZZANINE
2,156 m²
TOTAL m2 RENTABLES:
10,740 m²

Amenities
  • Covered parking
  • Street parking

BEST Inmobiliaria

  • 5522680297
  • best-inmobiliaria.easybroker.com

BEST Inmobiliaria

  • 5522680297
  • best-inmobiliaria.easybroker.com