BEST Inmobiliaria

  • 5522680297
  • best-inmobiliaria.easybroker.com

Departamentos en Costa Verde MORIANA

Costa Verde, Boca del Río

$2,300,000 For Sale

  • 2 Bedrooms
  • 2 Bathrooms
  • 1 Parking spaces
  • 77 m² total space
  • EB-TV3031 ID
Description

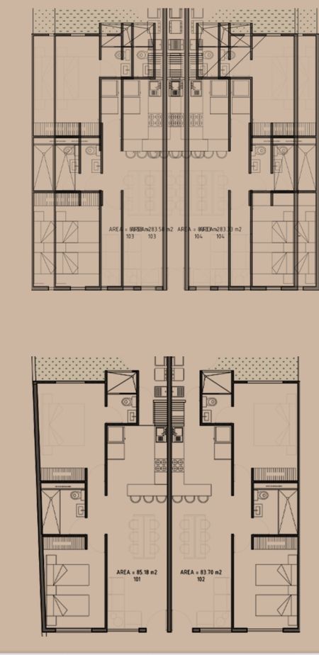
Departamentos en venta en Fracc. Costa Verde, Boca del Río, Ver

Precio desde: $2,300,000 hasta: $2,700,000

Habitables: desde 77m² hasta 89m² + 1 cajón de estacionamiento.
Fecha Estimada de entrega: Diciembre 2025

Distribución:
- Sala
- Comedor
- Cocina con barra desayunadora
- Recámara principal con clóset y baño completo
- Recámara secundaria con clóset
- Baño completo compartido
- Cuarto de lavado

BEST Inmobiliaria

  • 5522680297
  • best-inmobiliaria.easybroker.com

BEST Inmobiliaria

  • 5522680297
  • best-inmobiliaria.easybroker.com