BEST Inmobiliaria

  • 5522680297
  • best-inmobiliaria.easybroker.com

BODEGAS EN RENTA NAUCALPAN

San Luís Tlatilco, Naucalpan de Juárez

$180,000 For Rent

  • 947 m² total space
  • 4 Floors
  • 2022 Age
  • 15% del valor total Expenses
  • EB-FX0129 ID
Description

Cuenta con acceso por
Blvrd. Periférico
Avenida primero de mayo
carretera Naucalpan Toluca

Piso completo 947m2, incluye baños de hombres y mujeres montacargas internos en la bodega.
Bodegas desde 184m2

Bodega 1 .- 338m2 $ 50,700MN +IVA + 15% Mantto.

Bodegas de 250m2
$ 37,500MN + IVA +15% de Mantto

Bodega de 192m2
$ 28,800MN + IVA + 15% de Mantto

Bodega de 184m2
$ 27,600MN + IVA + 15% de Mannto

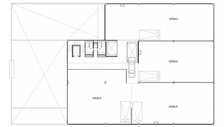
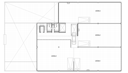
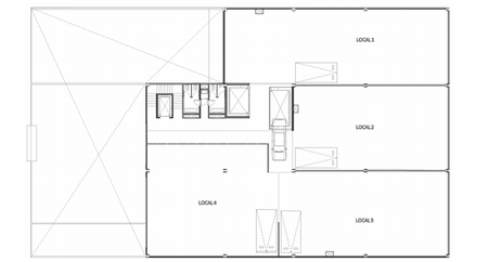
Nivel 1
Bodega 2.- 250m2
Bodega 3.- 192m2
Bodega 4.- 250m2
Bodega 5.- 184m2
área de baños y vestíbulo 71m2
Nivel 2
Bodega 6 .- 250m2
Bodega 8.- 192m2
Bodega 9.- 250m2
Bodega 10.- 184m2

Nivel 3
Bodega 11.- 250m2
Bodega 12.- 192m2
Bodega 13.- 250m2
Bodega 14.- 184m2

Nivel 4
Bodega 15.- 250m2
Bodega 16.- 192m2
Bodega 17.- 250m2
Bodega 18.- 184m2

- Capacidad de carga 1 Ton/ m2
- Altura de bodega 3.50m a lamina
- Altura 3.20m2 a trabe
- Patio de maniobras con acceso para trailers
Lobby
Circuito cerrado de seguridad
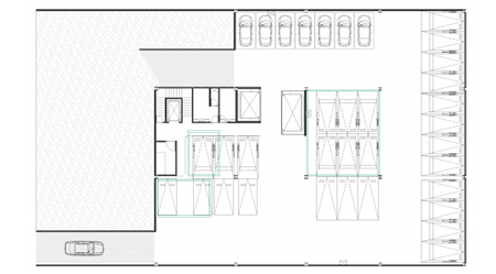
- 32 cajones de estacionamiento
con altura libre 3.52m
- Escaleras de servicio
- Sistema de control de accesos Face ID
-Cisterna con capacidad de 120mil litros.
- Elevador de pasajeros
- Dos montacargas
- Sistema contra incendio (hidrantes)

Amenities
  • Covered parking
  • Street parking
  • Closed-Circuit Security System
  • Platform
  • Cistern
  • Garage

BEST Inmobiliaria

  • 5522680297
  • best-inmobiliaria.easybroker.com

BEST Inmobiliaria

  • 5522680297
  • best-inmobiliaria.easybroker.com