BEST Inmobiliaria

  • 5522680297
  • best-inmobiliaria.easybroker.com

BODEGA EN VENTA STA. CATARINA Industrial Park 1

Santa Catarina Industrial Park, Santa Catarina

$17,314,200.40 For Sale

  • 932.28 m² total space
  • 1,000 m² Lot Size
  • 23.23 m Lot Width
  • EB-PM2688 ID
Description

Ing. Juan Celada Salmon # 118 LOTE 13

PRECIO YA INCLUYE IVA
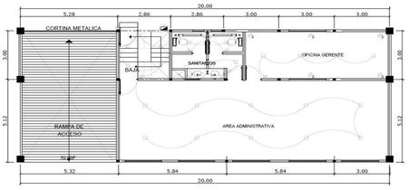
ÁREA DE BODEGA 816.52 M2
ÁREA DE OFICINAS 57.88 M2
ÁREA DE ESTACIONAMIENTO TECHADO
57.88M2

En el Fraccionamiento Terra Park 1
Calle Ing. Juan Celada Salmon 108

Incluye viglancia 24/7.
Altura 9 mts parte mas alta 12 mts Techo de 2 aguas.
Anden de Carga descendente
Lamina Traslucida un poco mas del 10% del area de Bodega.
Lamina de calibre mas grueso para no tener colchoneta.
2 louvers en la parte frontal de la bodega y otro 2 parte trasera ubicados en la parte mas alta del techo 2 aguas
(no lo tapa el vecino de atrás porque la bodega tiene mas altura ) por consiguiente mas fresca.
18 Lamparas led seccionadas para su encendido en grupos de 6.
Luz trifasica (se dono a cfe el transformador) y se puede contratar hasta 15kva si se ocupa + se tiene q poner
subestacion propia y poner poste.
Centro de Carga Q-20 termomagentico de 250
2 Baños para trabajadores en el Area de la Bodega.
Area de cocina tarja micro y zinc para limpieza de la bodega.
Oficina volada para no ocupar espacio de la bodega.
Escalera al 2do nivel con barandal.
Oficina abierta mas alta de lo normal para tener amplitud y la divide con tablaroca a su gusto.
Area de cocina tarja micro y zinc para limpieza.
Yeso en las oficinas con piso , zoclo, 2 ventales de piso a techo hacia la bodega y ventanas hacia la calle de aluminio.
Habilitado de climas(dos) ya cbleados con pastilla.
Focos led en las oficina y estacionamiento.
5 Estacionamientos Techados al Frente de La bodega.
2 Cortinas de acero una para la rampa 5mt ancho X 5mt altura con puerta en medio de acceso y otra acceso 1mt de ancho
X 2mt de altura del escationamiento a la bodega.
Tinaco de 1,100 lts.
Bodega pintada de blanca por dentro en todo el permietro de blanco a 9 mts de altura
y en la oficina por el exterior parte del frente y trasera de gris interior blanco .

BEST Inmobiliaria

  • 5522680297
  • best-inmobiliaria.easybroker.com

BEST Inmobiliaria

  • 5522680297
  • best-inmobiliaria.easybroker.com