BEST Inmobiliaria

  • 5522680297
  • best-inmobiliaria.easybroker.com

BODEGA EN BLVD. 2000 DENTRO DE PARQUE INDUSTRIAL

Río Tijuana 3a Etapa, Tijuana

US$ 7.50 per m² For Rent

  • 1,763 m² total space
  • EB-SG0769 ID
Description

NAVE INDUSTRIAL EN RENTA DENTRO DE PARQUE INDUSTRIAL. EN BLVD. 2000

Cuenta con excelente ubicación dentro de la zona de alto crecimiento industrial.
Especificaciones:
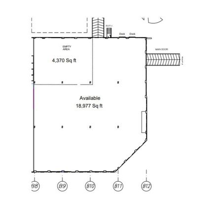
Área Rentable: 18,977 sqft (1,763 m2)

Andenes: 2
Rampa de acceso: 2
Puerta de emergencia: 2
Muro: Tilt up
Altura libre: 10.9 m

Amenities
  • Platform
  • Loading dock
  • Patio

BEST Inmobiliaria

  • 5522680297
  • best-inmobiliaria.easybroker.com