BEST Inmobiliaria

  • 5522680297
  • best-inmobiliaria.easybroker.com

Bodega Comercial en Renta en el Centro

Mérida Centro, Mérida

$95,000 For Rent

  • 1,204.27 m² total space
  • 1,136.97 m² Lot Size
  • 2 Floors
  • EB-TC6546 ID
Description

Bodega Comercial en Renta en el Centro

Con varios espacios en el centro de la Ciudad.

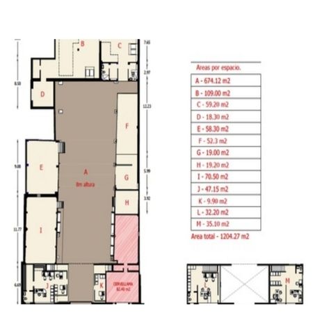
Área total. 1204.27m2
Área de bodegas. 1079.92 M2
Área de oficinas. 124.35 M2
Planta Baja
10 espacios de oficina
Bodega de 674.12 M2 con 8 metros de altura
2 baños completos
2 medios baños en distintas oficinas
Planta Alta:
2 medios baños
2 espacios de oficinas

Precio de Renta: $95,000

Disponibilidad y precios sujetos a cambio sin previo aviso
** Contáctenos para mayor información
*** Citas con 2 de horas de anticipación
**** El precio de la propiedad no incluye gastos notariales ni impuestos a cubrir

Amenities
  • Storge Unit
  • Office

BEST Inmobiliaria

  • 5522680297
  • best-inmobiliaria.easybroker.com

BEST Inmobiliaria

  • 5522680297
  • best-inmobiliaria.easybroker.com