BEST Inmobiliaria

  • 5522680297
  • best-inmobiliaria.easybroker.com

¡¡ATENCIÓN INVERSIONISTAS!!, LOCAL EN RENTA EN PLAZA COMERCIAL EN ZONA DORADA

Belisario Domínguez, Tuxtla Gutiérrez

$35,000 For Rent

  • 202 m² total space
  • 2 Floor
  • 10% Expenses
  • EB-TE4401 ID
Description

Local en renta en Plaza comercial ideal para restaurant o bar, ubicado del lado poniente de la Ciudad, con fácil acceso en una de las vías principales de Tuxtla Gutierrez (Boulevard Belisario Dguez.).
La plaza cuenta con 11 locales comerciales.
Amplio estacionamiento, pertenece a un hotel por lo que siempre hay una base de clientes.

Área de terraza incluida, permitiéndole tener una vista panorámica de la Ciudad, y del Boulevard Belisario Domínguez, área transitada.

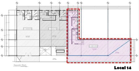
- Superficie Construida: 202 m2
- Frente: 21.72
- Fondo: (Tiene dos fondos) 17.11 y 7.91 (Inmueble irregular)
- Ubicado en el 2do. Nivel, Cuenta con Elevador y escaleras.
- Se paga un 10% de la renta mensual para mantenimiento
- Se entrega en obra gris

Precio de renta + iva
Se paga una cuota de mantenimiento del 10% del monto de la renta
* La cuota de Mantenimiento cubre basura, seguridad, circuito cerrado, luz y aseo en área comunes y fachada.

Para mayores informes ó visitas, llámenos! Con gusto le atenderemos.
Llama hoy mismo y agenda una cita!!

Amenities
  • Cistern
  • Street parking
  • Accessibility for elderly
  • Handicap accessible
  • Elevator
  • Terrace

BEST Inmobiliaria

  • 5522680297
  • best-inmobiliaria.easybroker.com